건축법 시행규칙 개정에 따른 건축자재 도면표기 가이드





































































건축법 시행규칙 개정에 따른 건축자재 도면표기방법 안내
2020-05-07
착공신고 시 제출하는 설계도서와 관련한 건축법 시행규칙의 개정내용이 2020.5.19.부터 시행됨에 따라 건축자재의 도면표기 방법에 대하여 안내드립니다.
- 건축법 시행규칙 [별표4의2]의 개정(2019.11.18.)으로 착공신고도서에 건축자재의 정보 및 방화구획 관련 사항 등을 표기하여야함
- 설계도면 작성 시부터 건축사가 자재를 선택함으로써 부실자재 사용으로 인한 부실건축 방지 등 국민의 안전 도모
| <현행> | <개정안> | |
| 도서의 종류 | 표시하여야 할 사항 | 표시하여야 할 사항 |
| 마감재료표 | 실내마감재 및 건축자재의 성능 및 품명, 규격, 재질, 질감, 색상 등의 구체적 표기 | 실내마감재료 및 외벽 마감재료, 외단열재의 성능, 품명, 규격, 재질, 질감 및 색상 등의 구체적 표기 |
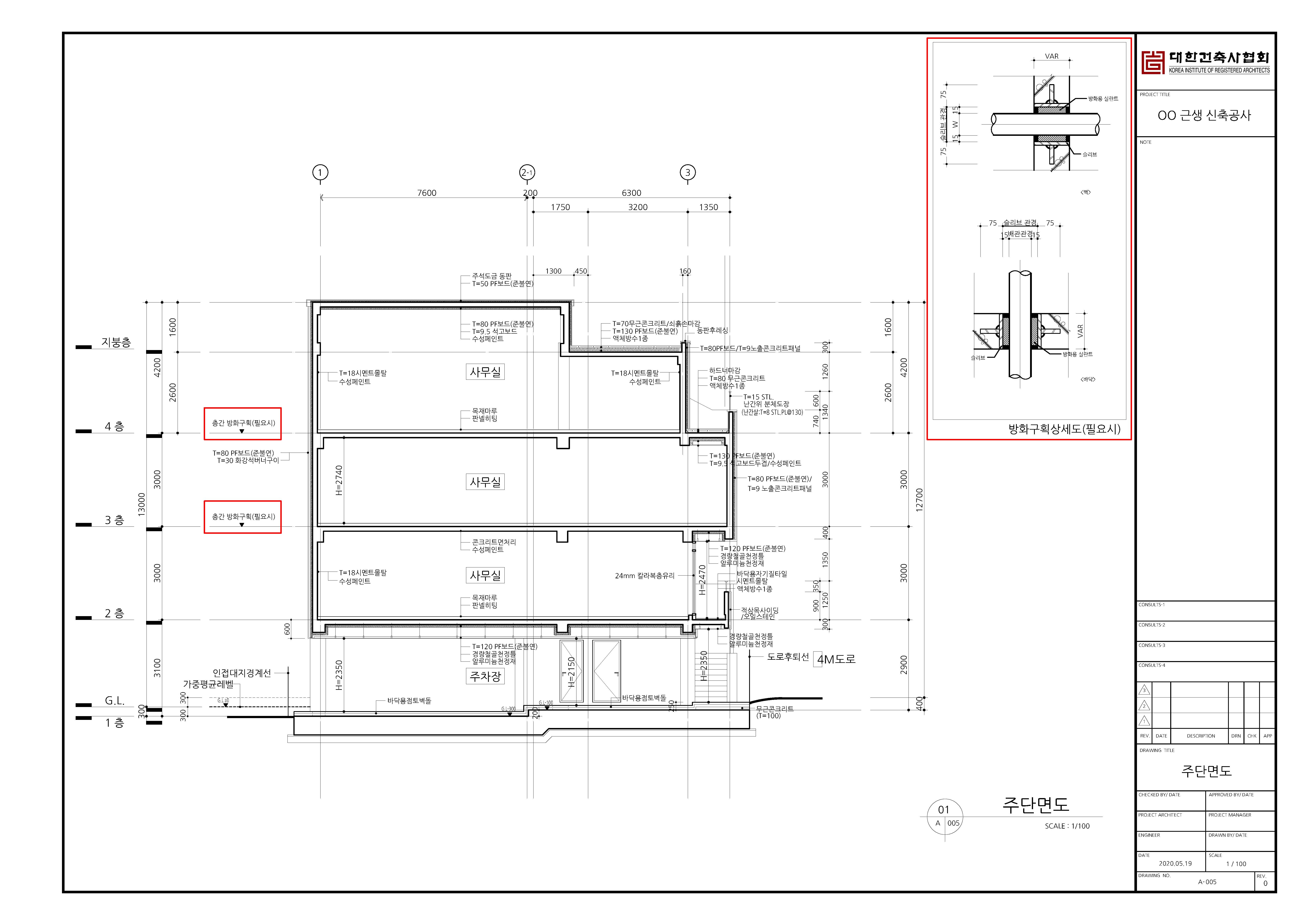
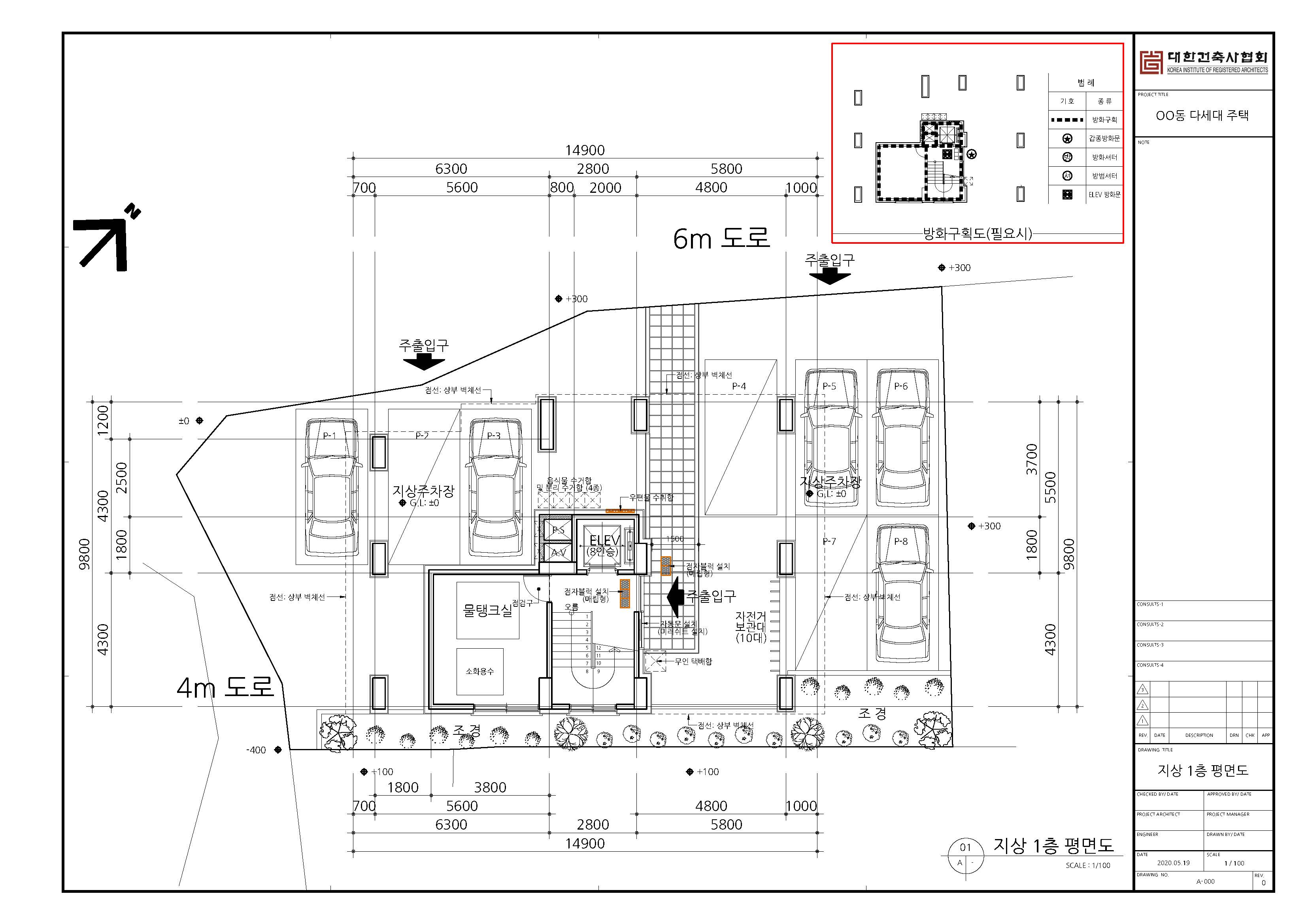
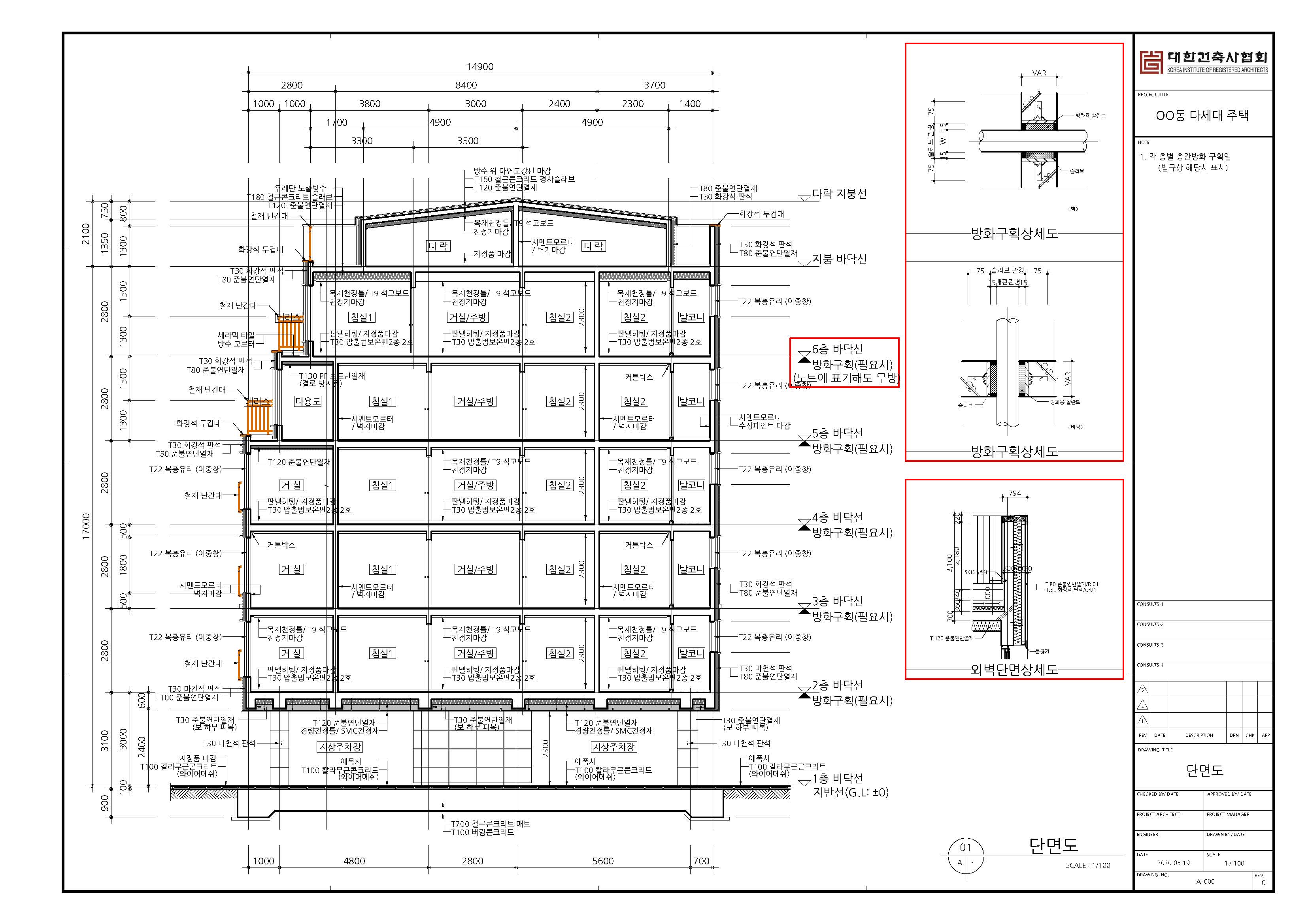
| 각 층 및 지붕평면도 |
방화 구획 및 방화벽의 위치 | 방화구획(방화문, 자동방화셔터, 내화충전구조, 방화댐퍼를 포함한다) 계획 |
| 입면도 | 주요 내외벽, 중심선 또는 마감선치수, 외부마감재료 건축자재 성능 및 품명, 규격, 재질, 질감, 색상 등의 구체적 표기 |
주요 내외벽, 중심선 또는 마감선 치수, 외벽 마감재료 건축자재 성능 및 품명, 규격, 재질, 질감, 색상 등의 구체적 표기 |
| 단면도 | <신설> | 방화구획(방화문, 자동방화셔터, 내화충전구조, 방화댐퍼를 포함한다) 계획 |
| 방화구획 상세도 |
<신설> | 방화문, 자동방화셔터, 내화충전구조, 방화댐퍼 설치부분 상세도 |
| 외벽마감 단면상세 |
<신설> | 외벽 및 외벽에 설치되는 단열재, 마감재료의 종류 (법 제52조제2항에 따른 건축물에 한함) |
이와 관련하여 우리협회에서 연구한 건축자재의 도면표기 방법을 붙임으로 안내드리오니 업무에 참조하여 주시기 바랍니다.
건축법 시행규칙 개정에 따른 건축자재 도면표기 가이드.pdf
9.90MB
출처 : 건축자재정보시스템 - 자료실
https://kiramat.kira.or.kr/main.do
건축자재정보센터
0 ★★★★★ ★★★★★ 옥상, 지붕, 베란다, 욕실, 수영장, 주차장 등의 신축 및 개보수용방수
kiramat.kira.or.kr
'건축정보' 카테고리의 다른 글
| 건축협정 건축물의 설계가이드라인 (0) | 2026.03.13 |
|---|---|
| 바닥충격음 시험 (0) | 2026.02.27 |
| 의료기관 건축설계 가이드라인 연구 (0) | 2026.01.23 |
| 버스 주차구획 최소 치수 (0) | 2026.01.16 |
| 신축아파트 입주자 사전방문 점검대행 선정 가이드라인 (0) | 2026.01.07 |
